Продажа квартиры в новостройке, Гурьевск, Героя России Катериничева ул, 1, Калининградская область
- Регион
- Калининградская область
| Адрес | Гурьевск, Героя России Катериничева ул, 1Объект на карте |
- Тип дома
- Кирпично-монолитный
- Этаж
- 6 этаж в 7-этажном доме
- Кол-во комнат
- 3
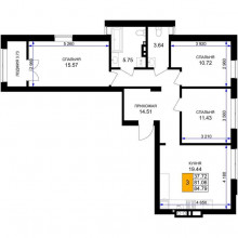
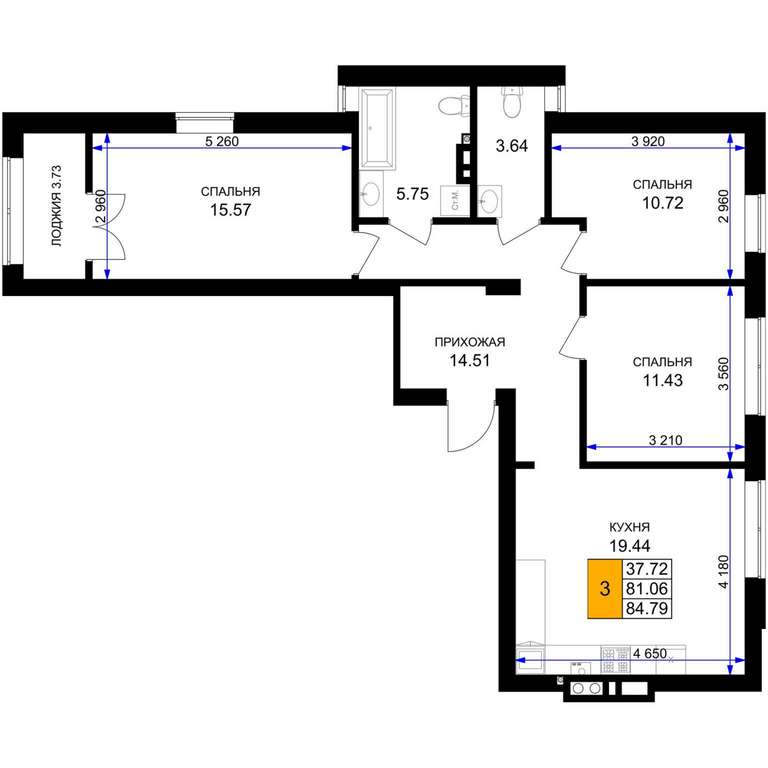
- Общая площадь
- 82.93 м2
- Жилая площадь
- 37.72 м2
- Площадь кухни
- 19.44 м2
- Дата обновления
- 17.04.2026
- Дата размещения
- 02.04.2026
Продается 3-комн. квартира, площадью 82.93 м2 в монолитно-кирпичной новостройке. Возможен вариант покупки с использованием ипотечных средств, есть рассрочка, возможна покупка с использованием материнского капитала, есть военная ипотека.
Жилая площадь 37.72 м2, кухня 19.44 м2, предчистовая отделка.
Квартира располагается на 6 этаже 7-этажного дома в ЖК Включи.
Застройщик - ГК ССК, сдача дома - I квартал 2027 года, высота потолков 2.7 м.
Дом оборудован пассажирским лифтом.
Парковка автомобилей - наземная. Инфраструктура: спортивные площадки, места для отдыха, супермаркет, коммерческие объекты.
Представляем вашему вниманию жилой комплекс комфорт-класса «Включи», расположенный в экологически чистом, окруженном зеленью, тихом и спокойном районе с хорошо развитой инфраструктурой всего в 3 км от Калининграда.
Здесь вы сможете насладиться всеми преимуществами загородной жизни, не отрываясь от большого города. Живите активно и с комфортом!
На территории комплекса есть всё для активного образа жизни: современные ворк-аут зоны и спортивные площадки для коллективных видов спорта.
Мы позаботились о чистоте и комфорте:
Стильные, сквозные подъезды с доступом с улицы и со двора.
Лапомойки на входе - забудьте о грязных следах в квартире.
Дополнительная очистка воды - забота о качестве вашей жизни.
АКЦИЯ:
Мы рады представить уникальное предложение, которое поможет вам осуществить мечту о собственном жилье! Только сейчас, при наличном расчете, вы можете воспользоваться выгодой
Это возможность стать владельцем квартиры в ЖК «Включи» по действительно выгодной цене.
Не упустите возможность стать обладателем комфортного и современного жилья, где каждая деталь продумана для Вашего удобства. ЖК «Включи» предлагает все необходимое для комфортной жизни: развитую инфраструктуру, уютные зоны отдыха и близость к важным объектам городской жизни.
Позвоните и узнайте условия покупки прямо сейчас!
Жилая площадь 37.72 м2, кухня 19.44 м2, предчистовая отделка.
Квартира располагается на 6 этаже 7-этажного дома в ЖК Включи.
Застройщик - ГК ССК, сдача дома - I квартал 2027 года, высота потолков 2.7 м.
Дом оборудован пассажирским лифтом.
Парковка автомобилей - наземная. Инфраструктура: спортивные площадки, места для отдыха, супермаркет, коммерческие объекты.
Представляем вашему вниманию жилой комплекс комфорт-класса «Включи», расположенный в экологически чистом, окруженном зеленью, тихом и спокойном районе с хорошо развитой инфраструктурой всего в 3 км от Калининграда.
Здесь вы сможете насладиться всеми преимуществами загородной жизни, не отрываясь от большого города. Живите активно и с комфортом!
На территории комплекса есть всё для активного образа жизни: современные ворк-аут зоны и спортивные площадки для коллективных видов спорта.
Мы позаботились о чистоте и комфорте:
Стильные, сквозные подъезды с доступом с улицы и со двора.
Лапомойки на входе - забудьте о грязных следах в квартире.
Дополнительная очистка воды - забота о качестве вашей жизни.
АКЦИЯ:
Мы рады представить уникальное предложение, которое поможет вам осуществить мечту о собственном жилье! Только сейчас, при наличном расчете, вы можете воспользоваться выгодой
Это возможность стать владельцем квартиры в ЖК «Включи» по действительно выгодной цене.
Не упустите возможность стать обладателем комфортного и современного жилья, где каждая деталь продумана для Вашего удобства. ЖК «Включи» предлагает все необходимое для комфортной жизни: развитую инфраструктуру, уютные зоны отдыха и близость к важным объектам городской жизни.
Позвоните и узнайте условия покупки прямо сейчас!



















